• Arc2 architectuur
  • Kebajastraat 41, 1336 NA Almere
  • 036 521 7770
  • info@originelehuizen.nl

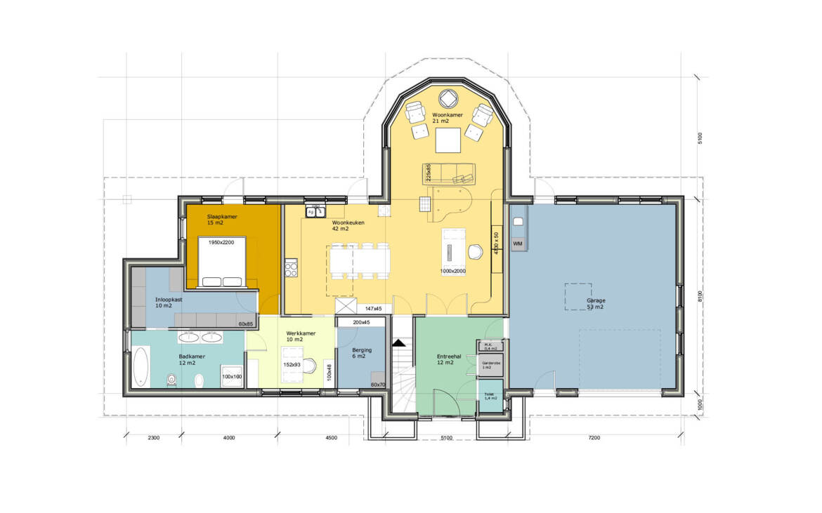
VijverVilla Almere Oosterwold

Energieneutraal woonhuis Oosterwold

In de lommerrijke buitenplaats Oosterwold hebben de opdrachtgevers een mooie kavel aan de centrale vijver van het landschappelijke plan. Het huis heeft een landelijke uitstraling met een karakteristieke kap die ruim over de gevel heen steekt. De kleuren en materialen zijn geïnspireerd op de lotusbloem, deze is ook verwerkt in de entreepui. Het huis is energieneutraal en van alle gemakken voorzien. Aan de achterzijde is een ronde erker aangebouwd waar men zomer en winter midden in de tuin kan zitten en uitkijken over de vijver met lotusplanten. Het huis is niet aangesloten op het riool, het afvalwater wordt behulp van een helofytenfilter gezuivert tot een kwaliteit die onschadelijk is voor het milieu. 
 

Gerelateerde Projecten