• Arc2 architectuur
  • Kebajastraat 41, 1336 NA Almere
  • 036 521 7770
  • info@originelehuizen.nl

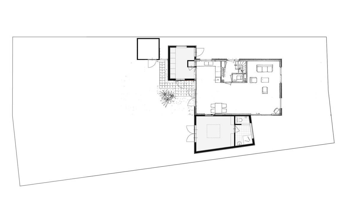
Villa Tuinzicht

Levensloopbestendige uitbreiding woonhuis Almere

Uitbreiding van een bestaand woonhuis in Almere om deze levensloopbestendig te maken door het realiseren van een slaap- en badkamer op de begane grond. De gevelbekleding van de kopgevel komt terug in de aangebouwde volumes. Op deze wijze vormt oud en nieuw een geheel. De volumes met orientatie op de tuin hebben een groen dak van mossedum.

Gerelateerde Projecten