• Arc2 architectuur
  • Kebajastraat 41, 1336 NA Almere
  • 036 521 7770
  • info@originelehuizen.nl

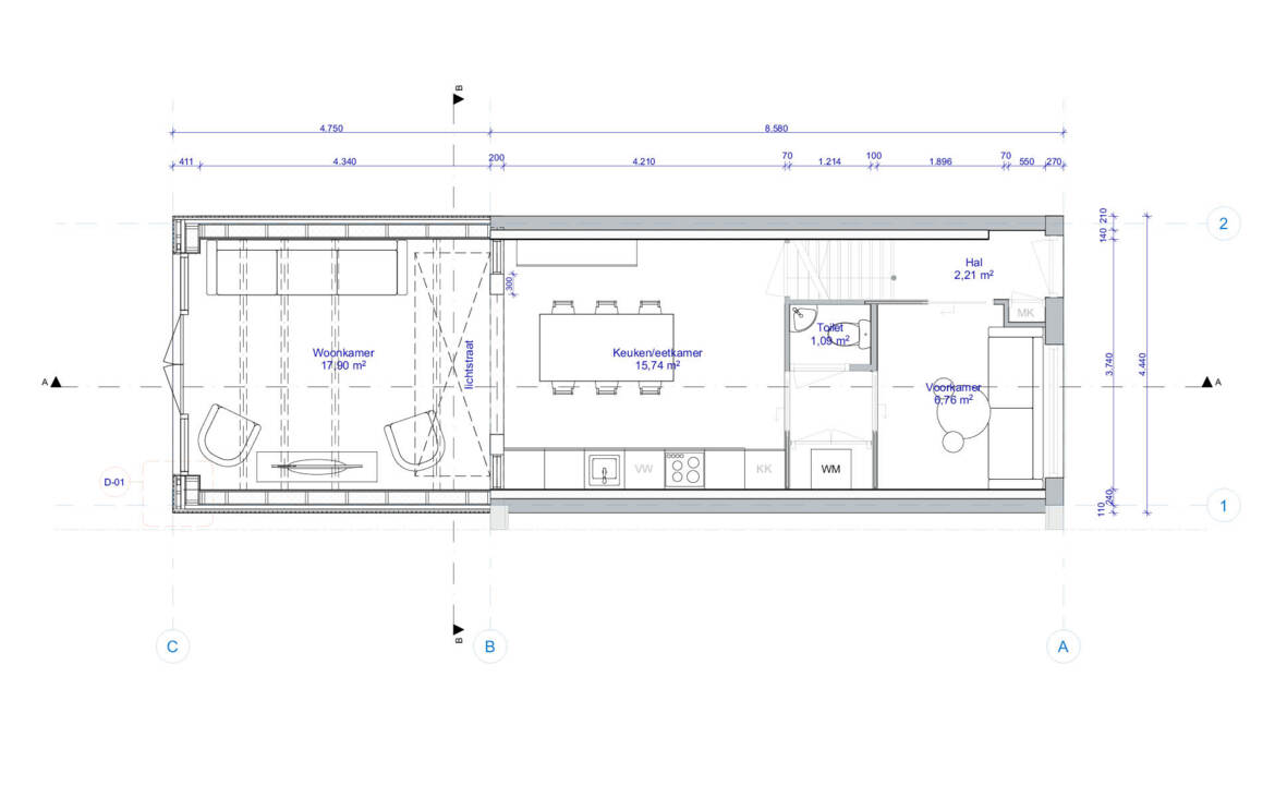
Uitbreiding Minstraat Utrecht

Renovatie en uitbreiding monumentale woning

Arc2 architectuur heeft een duurzaam ontwerp gemaakt voor een uitbreiding van een monumentale woning op de Minstraat in Utrecht. Voor de uitvoering van het ontwerp worden voornamelijk biobased materialen toegepast. Ter plaatse van de doorbraak van de achtergevel wordt een zichtbare eikenhouten draagconstructie toegepast. De gebogen toog, die in de oorspronkelijke gevels op verschillende plekken is terug te vinden, geeft aan de achtergevel van de uitbreiding karakter en legt een directe verbinding met heden en verleden. De oorspronkelijke gebogen toog ter plaatse van de doorbraak is gehandhaafd en zichtbaar gehouden. De woning en uitbreiding zijn energiezuinig ontworpen. Een sedumdak draagt bij aan een comfortabel binnenklimaat en de biodiversiteit in de omgeving. 
 

Historische achtergrond

De woning op de Minstraat 45 vormt onderdeel van eenlaagswoningen die in 1901 zijn gebouwd als hofje van het Leeuwenberggasthuis. Tezamen vormen de woningen een aaneengesloten straatwand van karakteristieke neo-renaissance uitbreidingen van een aantal fundaties in de binnenstad. Het bouwblok van het Leeuwenberggasthuis wordt bedekt door een zadeldak evenwijdig aan de straat. Elke woning is twee traveeen breed. Boven de vensters bevinden zich de karakteristieke gedrukte bogen. Het complex is van historisch belang als voorbeeld van een vroeg 20e eeuwse hofje. Het is van architectuurhistorisch belang als voorbeeld van neo-renaissance met Jugendstilelementen.

 

Gerelateerde Projecten