• Arc2 architectuur
  • Kebajastraat 41, 1336 NA Almere
  • 036 521 7770
  • info@originelehuizen.nl

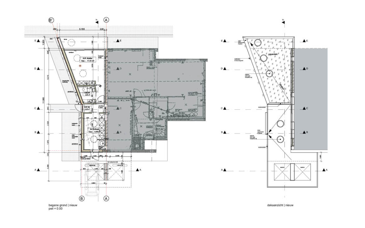
GalerieHuis Almere

Eigentijdse uitbreiding villa

Voor deze moderne villa in Almere is een passende en eigentijdse uitbreiding ontworpen. De aanbouw bevat een atelier aan de tuinzijde, berging en entreeluifel. De uitbreiding wordt gebouwd met natuurlijke materialen en krijgt een groendak. De houten lariks gevelplanken worden door middel van een zwarte levende biologische beschermlaag verduurzaamd.

Gerelateerde Projecten